Übersicht

  • Aktualisiert am:
  • Januar 15, 2026
  • 8 Räume
  • 6 Badezimmer
  • Baujahr: 1969

Wohn & Geschäftshaus in 1a Lage der Grevenbroicher City

989.000 €
Kölner Straße 31, Grevenbroich , ,
Favorit

Angebots-Adresse

Adresse: Kölner Straße 31, Grevenbroich
Stadtteil:
PLZ: 41515
Land: Deutschland

Beschreibung

Beschreibung

Das hier angebotene Wohn- und Geschäftshaus verfügt über ein großzügiges Ladenlokal inklusive Büro- und Sozialräumen sowie über fünf weitere Wohneinheiten.

Von den vorhandenen Wohnungen sind derzeit drei Einheiten vermietet, während zwei Wohnungen aktuell leer stehenund somit kurzfristiges Vermietungspotenzial bieten. Das Ladenlokal ist momentan unvermietet und überzeugt durch seine großzügigen Lagerflächen im Kellergeschoss sowie einen praktischen Lastenaufzug, der vielseitige Nutzungsmöglichkeiten eröffnet.

Zusätzlich bietet das Dachgeschoss, das derzeit als großzügiger Speicher genutzt wird, attraktives Ausbaupotenzial zur Schaffung einer weiteren Wohneinheit – vorbehaltlich der behördlichen Genehmigungen.

Bei einer zugrunde gelegten durchschnittlichen Nettokaltmiete von 6,82 €/m² ergibt sich perspektivisch eine jährliche Netto-Mieteinnahme von ca. 93.264 €.

Ausstattung

  • 2015 Flachdacherneuerung
  • 2019 Badsanierungen
  • 2019 Fassadenerneuerung

Lage

Das Wohn- und Geschäftshaus befindet sich in bester, zentraler Innenstadtlage von Grevenbroich. Der Marktplatz, zahlreiche Cafés und Restaurants, die Geschäfte der Fußgängerzone sowie ein Verbrauchermarkt sind bequem fußläufig erreichbar.

Ebenso befinden sich Arztpraxen, Apotheken, Banken, das Rathaus, öffentliche Verwaltungseinrichtungen, das Krankenhaus sowie Schulen in unmittelbarer Nähe – ein klarer Standortvorteil sowohl für Gewerbe- als auch für Wohnnutzungen.

Der öffentliche Personennahverkehr ist in ca. 200 Metern erreichbar, der Stadtpark in ca. 300 Metern. Der Bahnhof Grevenbroich liegt nur etwa 800 Meter entfernt und bietet eine hervorragende regionale und überregionale Anbindung.

Die Autobahn A46 erreichen Sie in ca. 5 Minuten mit dem PKW mit optimaler Verbindung in Richtung Düsseldorf, Aachen und Mönchengladbach. Über die B59 besteht zudem eine direkte Anbindung nach Köln. Eine direkte Bahnanbindung nach Köln, Mönchengladbach, Neuss und Düsseldorf ist ebenfalls gegeben und unterstreicht die hervorragende Verkehrsinfrastruktur dieses Standorts.

Sonstiges

Aufteilung der Wohn & Gewerbeflächen;

Kölner Str. 31

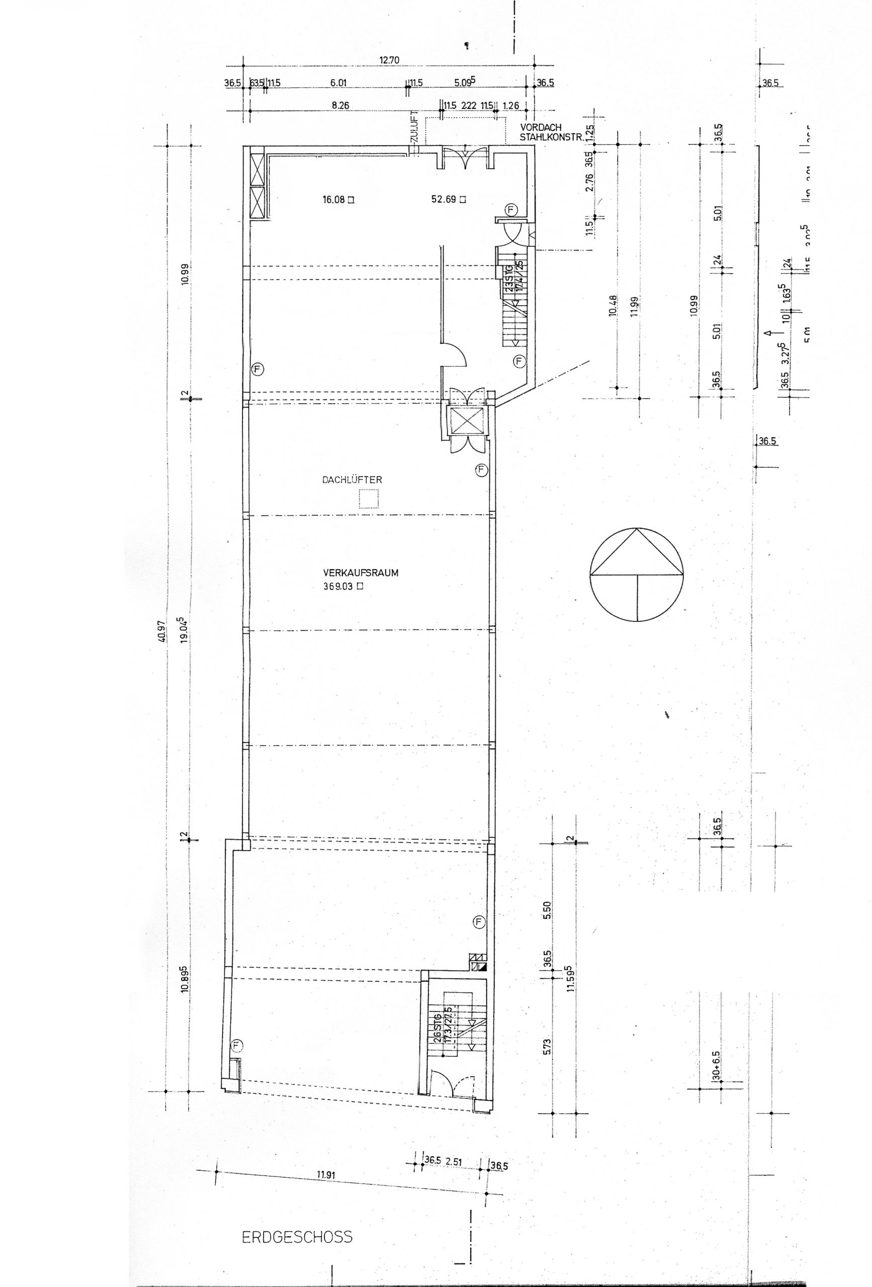
  • EG Ladenlokal ca. 410 qm
  • Keller Laden ca. 312 qm
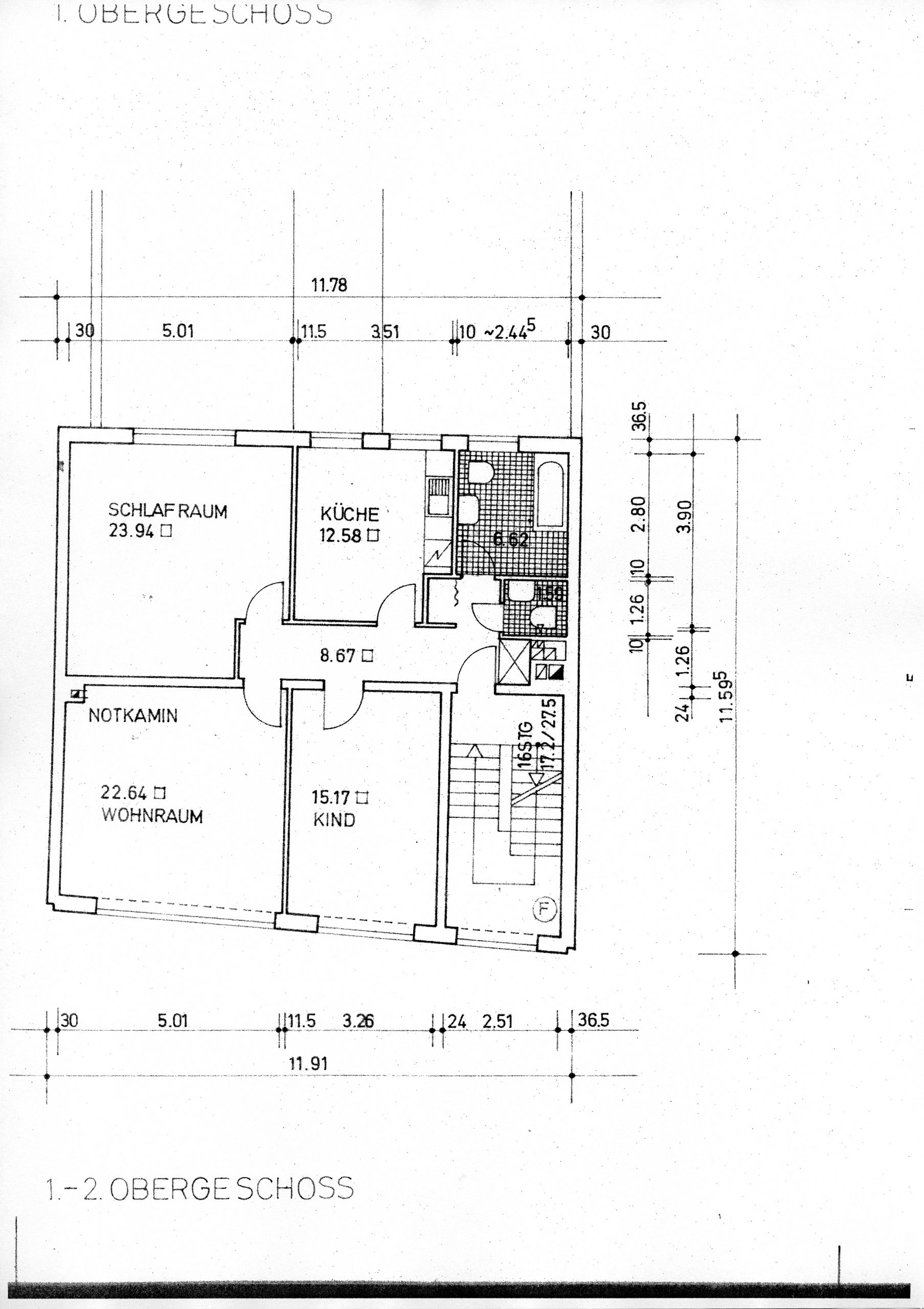
  • 1. OG 3 Zi. K, D, B, G-WC ca. 94 qm
  • 2. OG 3 Zi. K, D, B, G-WC ca. 94 qm

Zehntstraße 24

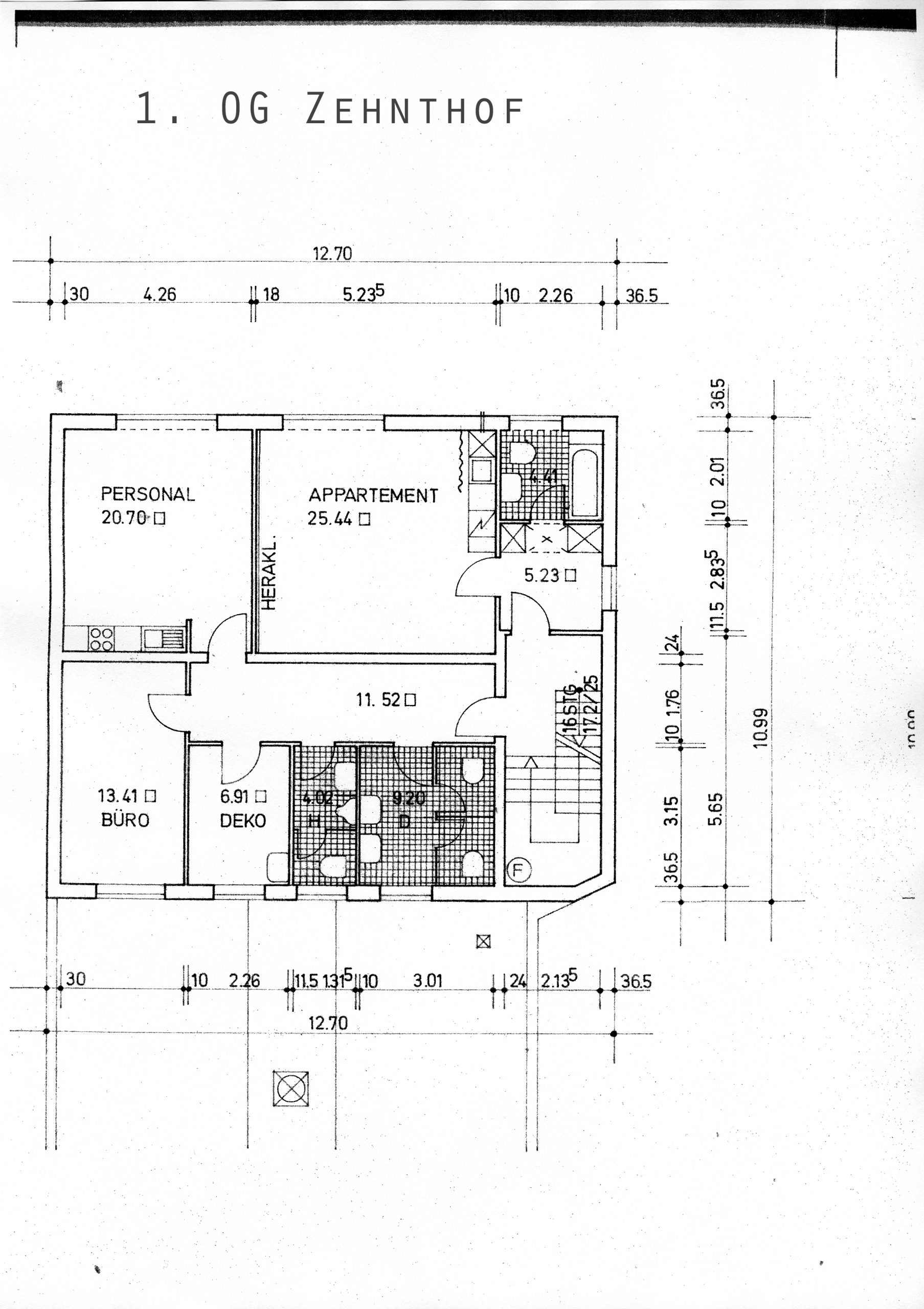
  • 1. OG 3 Büros, 2 Toiletten fürs Personal ca. 65 qm
  • 1. OG 1 Zi. Appartement, Bad ca. 28 qm
  • 2. OG 3 Zi. K, D, B, ca. 66 qm
  • 2. OG 1 Zi. Appartement, Bad ca. 36 qm

Energy performance of the building: Öl Heizung
Energie Index in kWh/m2a: 118,69
Energieeffizienzklasse : D
A+
A
B
C
118,69 kWh/m²a Energieeffizienzklasse D
D
E
F
G
H

Details des Angebotes

Objekt -Nummer: 27115
Preis: 989.000 €
Wohnfläche: 1,103 m2
Grundstücksgrösse: 481 m2
Zimmer: 9
Schlafzimmer: 8
Badezimmer: 6
Baujahr: 1969
Objektzustand: gepflegt
Courtage: 3,57% incl. MwSt.

Stefan Ophoven

Geschäftsleitung & Immobilienmakler

Stefan Ophoven

Geschäftsleitung & Immobilienmakler

Stefan Ophoven

Geschäftsleitung & Immobilienmakler

Kontaktieren Sie uns

Karte

Grundrisse

Erdgeschoss
1. & 2. OG Kölner Str. 31
1. OG Zehntstraße 24
2. OG Zehntstraße 24

Vergleiche Angebote

Stefan Ophoven